| |
Kategorie: Bauen, Garten & Wohnen, Gesuche Baumaterial & Produkte, Innen, Aus- und Umbau |
|
| |
| HAUS-Renovierung in Anif bei Salzburg (15 km von Bayern) | Auftragsnummer: 28333 |
|
|
| |
|
 |
| Aktuelles Gebot: |
1,00 EUR inkl. MwSt. |
| Aktuelle Ersparnis: |
0% |
| Startpreis: |
0,00 EUR inkl. MwSt. |
| Eingestellt am: |
28.12.2009 22:59:01 |
| Auktionsende: |
Auktion beendet |
| Wer darf bieten: |
Newcomer, Bronze, Silber, Gold, Titan |
| Arbeitszeitraum: |
02.04.2010 - 05.08.2010 |
| Kosten für Anfahrt übernimmt: |
Auftraggeber |
| Wer stellt Material: |
Auftragnehmer |
| Besichtigung: |
Freitag mittags |
| Besucher: |
2008 |
| Gebote: |
5 |
|
| Diesen Auftrag beobachten |
|
|
| |
| Der Auftraggeber übernimmt die volle Verantwortung für diese Auktion |
|
|
| Auftragsbeschreibung |
| |
| Dach neu eindecken und isolieren, 2 Bäder, Küche, ca. 250 qm neue Böden, neue Zentralheizung, alle Wände malern, Aussenanstrich, alle Holz-Fenster innen und aussen streichen, Garten, Pool, Keller, etc.
ES GIBT JEDE MENGE ARBEIT: Haus aus den 50er Jahren - sehr gute Substanz - letzte Renovierung 1986!
TERMIN: ab Frühjahr 2010 - Sommer 2010
Budget: ca. 200 TSD |
 |
 |
|
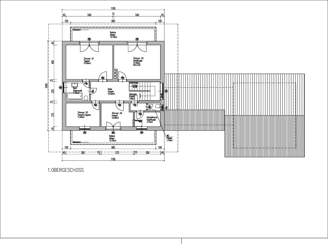
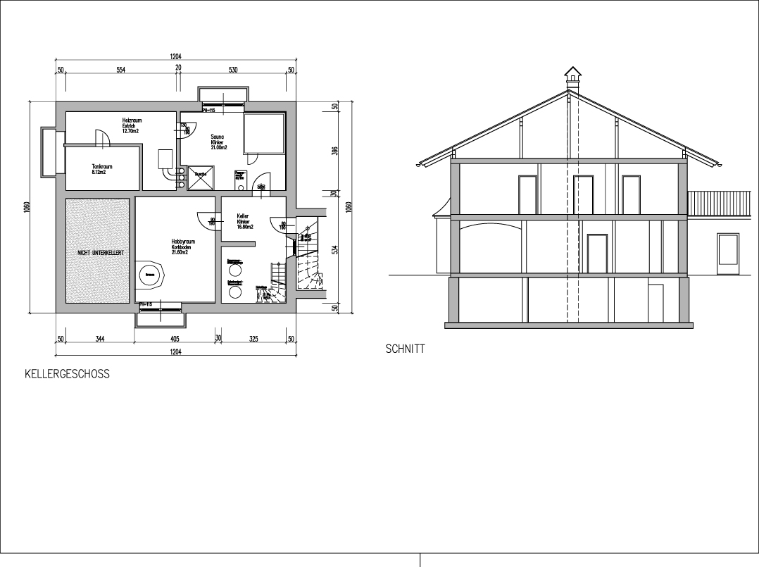
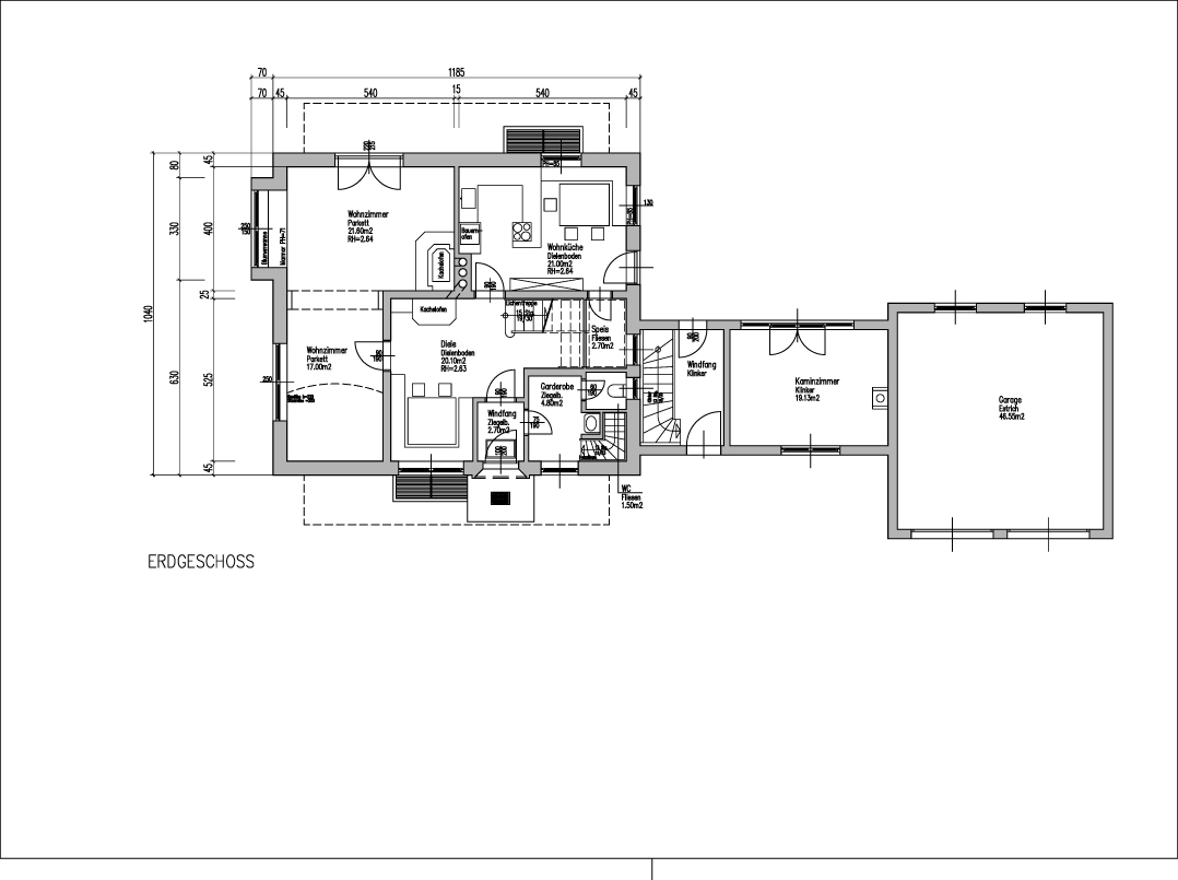
| Der Auftraggeber hat zusätzlich 3 Datei(en) hochgeladen. |
Name: EG_72dpi.jpg Größe: 130,63 kB |
Download |
|
| |
Name: OG_72dpi.jpg Größe: 157,79 kB |
Download |
|
| |
Name: Keller_72dpi.jpg Größe: 142,02 kB |
Download |
|
|
| |
| |
| Fragen und Antworten |
von: SiegnerMaik am 29.12.2009 13:35:14
Guten Tag,wären die Arbeiten auch einzeln zuvergeben oder nur komplett,bitte teilen Sie mir das mit weil ich nicht alles machen kann,wäre super wenn das möglich wäre.
Mfg Maik Siegner
|
von: Oli Anif am 31.12.2009 17:53:02
Auch einzelne Aufträge kann ich vergeben! GUTES NEUES JAHR! Ihr Oliver Fuchs |
von: SiegnerMaik am 04.01.2010 00:07:21
Hallo würde gerne die Böden und das malern sowie die Gartenarbeiten übernehmen .
Mfg Siegner
|
von: Raum + Farbwelt am 05.01.2010 18:30:26
Guten Tag,
haben Sie ein LV für die Malerarbeiten. Wenn ja bitte an folgende Mail schicken:
Danke.
Mit freundlichen Grüßen
Raum + Farbwelt
M. Schulze. |
von: Oli Anif am 07.01.2010 17:45:42
Bezüglich Malerarbeiten: Ich ersuche Sie, den LV (Lösemittelverbrauch) selbst zu schätzen:
Hausanstrich aussen:
Masse:
11,85 x 10,40
2 geschossig + Dachboden
+ 1 geschossigen Anbau (siehe Plan) + Garage (siehe Plan).
Wände innen: siehe Plan EG, OG, Keller, Kaminzimmer (Anbau) + Garage.
Fenster und Türen (beide Holz) innen und aussen.
Vielen Dank.
Auftragsvergabe bis Februar / März.
Auftragsbeginn: März / April |
von: Oli Anif am 07.01.2010 17:47:44
Hallo Herr Siegner!
Am Besten wird sein, dass Sie sich bei uns vorstellen. Bitte melden Sie sich bei mir telefonisch an, um einen Termin in den nächsten 4 - 6 Wochen vereinbaren zu können.
Mit besten Grüßen, Oliver Fuchs
|
von: Raum + Farbwelt am 07.01.2010 18:55:50
Guten Abend Herr Fuchs,
übrigens LV heißt Leistungsverzeichnis. Noch einmal meine Frage. Wäre es möglich mir ein LV per Mail zu senden. Bei Google meinen BN eingeben. Danke.
Mit freundlichen Grüßen
Raum + Farbwelt
M. Schulze. |
von: Siegner am 07.01.2010 18:56:36
Hallo,ich benötige dazu bitte eine Telefonnummer,bitte senden Sie mir zu,damit ich mit Ihnen Kontakt aufnehmen kann .
Danke Mfg Siegner |
von: Oli Anif am 11.01.2010 21:04:09
Nachrichten an: |
von: jolinamaria am 18.01.2010 13:15:55
Guten Tag nach Östereich.Bin selbstendig und arbeiten schon 30 Jahre auf Renovierungen von Häusa.Ich kann ganze Arbeit komplett ubernehmen wenn ist das möglich.SG von Vlado aus Krefeld |
von: derhandwerkerengel am 04.02.2010 15:46:22
Sehr geehrter Herr Oliver Fuchs,
wir sind zwar nicht aus Österreich oder Bayern, können jedoch den Auftrag komplett übernehmen, falls Ihnen unser Profil zusagt, so senden Sie uns Ihre Vorstellungen evtl ein LV per Email zu.
Vielen Dank
Der Handwerkerengel aus Hennef/Sieg |
von: Ptica01 am 13.02.2010 11:19:41
Bitte um Kontakt zwecks Besichtigungstermin. 0151 23682831.
Wir können sofort loslegen.
Auf meiner Homepage können Sie sich ein paar Bilder von meinen Arbeiten
anschauen. www.okt-skowron.de
Mit freundlichen Grüßen
Skowron
|
von: Siegner am 17.02.2010 22:03:35
Guten Abend Herr Fuchs
ich habe Sie gebeten mir eine Kontaktnummer zu kommen zu lassen aber diese ist leider nicht angekommen bei mir,sollte es noch möglich sein bitte ich Sie unter 06652/1829585 anzurufen oder mir die Telefonnummer unter meiner E-Mail zu schicken.
Danke und noch einen schönen Abend .
Mfg Siegner |
von: connyy66 am 06.03.2010 09:26:58
Sehr geehrter Auftraggeber
Wir könnten Ihr BV als Generalunternehmer dürchführen und würden uns somit um alle zu erledigten Arbeiten kümmern.
MfG Montageservice Glauser |
von: connyy66 am 07.03.2010 16:07:02
Sehr geehrter Auftraggeber
Gern würden wir Ihren Auftrag als Generalunternehmer durchführen.Leider ist ein Kostenvoranschlag erst nach einer Besichtigung möglich oder die Vergütung erfolgt pro Bauabschnitt.Gern können Sie sich mit uns in Verbindung setzen.
MfG Montageservice Glauser |
von: z123service am 16.03.2010 00:04:18
Guten Tag,
unsere Firma www.z-123service.de kann ab sofort alle Leistungen übernehmen.
Sie können sich gerne jeder Zeit mit Uns in Verbindung setzen.
Mfg.
z-123service.de
|
von: Siegner am 28.03.2010 22:50:26
bitte um Anruf unter 06652/1829586,wegen Ihrer Ausschreibung oder eine e-mail mit telefonnummer an
Mfg Siegner
|