Handwerkerbörse und Versteigerung von Dienstleistungen
Finden Sie individuell Dienstleister und Handwerker - preiswert und schnell.
So funktionierts

(1) Beschreiben Sie Ihren Auftrag

(2) Handwerker und Dienstleister geben Gebote ab

(3) Erhalten Sie gute Arbeit zu fairen Preisen
>> mehr Infos // Anmelden
 
das Original der
Unterbiet-Auktionen für
Dienstleistungen
über 50.000 Mitglieder

geprüfte Qualität

 

Anfragen und Auktionen
kostenlos erstellen
 
  Kategorie: Bauen, Garten & Wohnen, Außen, Gartenbau  
 
Gartengestaltung ( Rollrasen, Entfernung einer Betonfläche und Sichtschutz zu Nachbarn ) Auftragsnummer: 30994
 
 
Aktuelles Gebot: 1.500,00 EUR inkl. MwSt.
Aktuelle Ersparnis: 0%
Startpreis: 1.500,00 EUR inkl. MwSt.
Eingestellt am: 25.08.2013 15:11:44
Auktionsende: Auktion beendet
Wer darf bieten: Gewerbeschein & Firmenhaftpflicht - darf auf Aufträge bieten mit Gold & Titan
 bei Undertool.de eingereicht Gold, Gewerbeschein & steuerliche Unbedenklichkeitserklärung & Firmenhaftpflicht - darf nur auf Titan Aufträge bieten bei Undertool.de eingereicht Titan
Arbeitszeitraum: 29.09.2013 - 04.10.2013
Kosten für Anfahrt übernimmt: Auftragnehmer
Wer stellt Material: Auftragnehmer
Besichtigung: Samstag morgens
Besucher: 975
Gebote: 0

Diesen Auftrag beobachten
Auftraggeber: michaelschum
PLZ/Ort: 60389 Frankfurt Main
Auftragsort: 60389 Frankfurt Main
Hessen
Deutschland

 
Der Auftraggeber übernimmt die volle Verantwortung für diese Auktion
 
 Auftragsbeschreibung
 

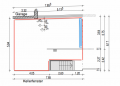
Aktuell ist kein Garten angelegt, wir hätten gerne Rollrasen Momentan ist der Boden von diversen Pflanzen und Unkraut zugewachsen.Die Fläche für den Rollrasen beträgt 60qm. 

Eine Seite der Fläche ist offen und führt zu den Fahrradstellplätzen des Hauses, anstelle von einem Zaun hätten wir gerne Pflanzungen als Sichtschutz.

 An einer Stelle ist eine 4qm große Betonfläche, die wir gerne entfernt hätte.

 
 
 
 
Gebot abgeben Auftrag direkt annehmen Wie biete ich?
Auktion beendet

Neue AGB und Gebühren: Ab 15.09.2006 übernimmt der Handwerker die Gebühren.

Tragen Sie hier den kleinsten Betrag ein, für den Sie bereit sind, den Auftrag durchzuführen.

Bei gleichen Angeboten führt dieses, welches als erstes eingegangen ist.

Bitte beachten Sie:
Jedes Gebot ist verbindlich.Wenn Sie also nicht ernsthaft den Auftrag durchführen wollen, dann bieten Sie auch nicht!

Option nur bei Auftragsauktionen verfügbar: 

Sie können hier durch Klick auf den Button "Auftrag direkt annehmen" die Auktion sofort beenden und den Auftrag zum festgelegten Preis durchführen. Vorraussetzung ist, daß der Auftraggeber einen Festpreis bestimmt hat.

Diese Option steht nicht mehr zur Verfügung sobald ein erstes Gebot für diesen Auftrag abgeben wurde.

Bitte beachten Sie:
Jedes Gebot ist verbindlich.Wenn Sie also nicht ernsthaft den Auftrag durchführen wollen, dann bieten Sie auch nicht!

  • Sie müssen angemeldet sein, um bieten zu können. Wenn Sie noch nicht angemeldet sind, können Sie sich jetzt kostenlos anmelden.
  • Informieren Sie sich über den Verkäufer. Lesen Sie die Bewertungen, die andere Mitglieder abgeben haben.
  • Machen Sie sich mit den Einzelheiten des Auftrags vertraut. Lesen die Beschreibung genau durch.
  • Wenn Sie Fragen haben, wenden Sie sich an den Verkäufer bevor Sie ein Gebot abgeben.
  • Möglichst ein niedriges Gebot abgeben, denn das kleinste Gebot gewinnt. Allerdings hat der Verkäufer nach Auktionsende 3 Tage Zeit (bei Kostenvoranschlägen 30 Tage) einen anderen Bieter zu wählen!
 Fragen und Antworten
von: Pflasterbau Mathias am 14.09.2013 13:37:31

Hallo.
Wann soll Auftrags beginn sein...
Kann mann die Baustelle besichtigen
LG
Pflasterbau

von: Pflasterbau Mathias am 15.09.2013 10:01:07

Guten morgen...ist das direkt in Frankfurt..
Danke